

Écs Fora Gyártóüzem
Új faház gyártóüzem tervezése
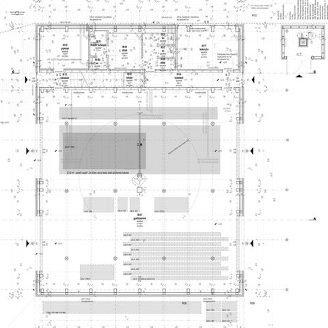
A tervezett épület a Foraházak Kft. új Gyártócsarnokát foglalja magában, amelyhez északkeleti oldalról csatlakozik a szociális és irodablokk. A megvalósítás két ütemben történik: az első ütemben a csarnok és a földszinti öltöző, valamint irodablokk készül el, míg a második ütem a felső irodablokkot az átalakított bejáratokat foglalja magában. épület egy tömegből áll, melyben szociális helyiségek két szinten helyezkednek el, és előregyártott fa szerkezetű, rétegelt ragasztott tetőtartókkal épül Az irodai részek bejáratainál függönyfalas kialakítást alkalmaznak.
A tervezési projekt során Écsen egy faház építő cég új cégközpontját alakítottuk ki, mely a növekvő kapacitás igényeit szolgálja ki. Az épület jelentős része saját fejlesztésű falpanelekből készült, biztosítva ezzel a hatékonyságot és a tartósságot. A projekt során kiemelt figyelmet fordítottunk a fenntarthatóságra, így a lehető legtöbb környezetbarát építőanyagot alkalmaztunk, hogy hozzájáruljunk a cég fő céljainak eléréséhez.
Megrendelő
Foraházak Kft.
Varga Balázs
Felelős tervező







